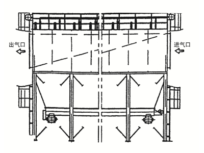
气箱脉冲袋式除尘器
TZQM气箱脉冲袋式除尘器 TZQM高浓分离喷吹气箱脉冲袋式除尘器是我司在传统的气箱脉冲袋除尘器基础上,集合低压脉冲除尘器的优点,研制成功的一种新型袋式除尘器。可广泛应用于各类高浓、高温、高湿烟气的除尘。与其它同类产品相比,该设备具有以下
产品详情
TZQM气箱脉冲袋式除尘器
TZQM高浓分离喷吹气箱脉冲袋式除尘器是我司在传统的气箱脉冲袋除尘器基础上,集合低压脉冲除尘器的优点,研制成功的一种新型袋式除尘器。可广泛应用于各类高浓、高温、高湿烟气的除尘。与其它同类产品相比,该设备具有以下显著特点:
脉冲离线清灰,除尘效率高达99.99%以上,粉尘无二次吸附,特别适用于处理高浓度烟气。
利用高温烟气反吹,有效防止结露、糊袋现象。
新型易清灰滤料的使用,可靠的烟气温度跟踪系统,能适应各种烟气条件。
气箱式结构,降低了局部阻损,并免除了滤袋安装不便等问题。
全自动PLC控制,操作简便,可靠性好。
适用于:烘干机、球磨机、包装机、破碎机及冶金、化工等高浓高温烟气的理想收尘设备。
| 参数型号 | TZQM— 3x32—A | TZQM— 4x32—A | TZQM— 5x32—A | TZQM— 6x32—A | TZQM— 4x64—A | TZQM— 5x64—A | TZQM— 6x64—A | TZQM— 7x64—A | TZQM— 8x64—A | |
| 处理风量(m³/h) | 6900 | 8900 | 11200 | 13400 | 17800 | 22300 | 26700 | 31200 | 35700 | |
| 过滤风速(m/min) | 1.0—2.0 | |||||||||
| 总过滤面积(㎡) | 93 | 124 | 155 | 186 | 248 | 310 | 372 | 434 | 496 | |
| 除尘器室数(个) | 3 | 4 | 5 | 6 | 4 | 5 | 6 | 7 | 8 | |
| 滤袋总数(个) | 96 | 128 | 160 | 192 | 256 | 320 | 384 | 448 | 512 | |
| 除尘器阻力(Pa) | 1470—1770 | |||||||||
| 进口气体含尘浓度(g/Nm³) | <200 | <1000 | ||||||||
| 出口气体含尘浓度(g/Nm³) | ≤0.05 | |||||||||
| 清灰 | 压力(Pa) | (5—7)×10 | ||||||||
| 压缩气体 | 耗气量(Nm³/h) | 0.27 | 0.37 | 0.46 | 0.55 | 1.2 | 1.5 | 1.8 | 2.1 | 2.4 |
| 电磁 | 数量(个) | 3 | 4 | 5 | 6 | 4 | 5 | 6 | 7 | 8 |
| 脉冲阀 | 规格(英寸) | |||||||||
| 提升阀 | 数量(个) | 3 | 4 | 5 | 6 | 4 | 5 | 6 | 7 | 8 |
| 卸灰阀 | 规格 | 300×300mm 电机功率1.1Kw | ||||||||
| 螺旋 | 规格 | 315mm | ||||||||
| 输送机 | 减速电机功率 | 3.0Kw | ||||||||
| 清灰程序控制器 | 输入和输出电压均为220V,控制器由制造厂配套供应 | |||||||||
| 滤袋规格 | 130X2450mm | |||||||||
| 保温层面积(㎡) | 26.5 | 34 | 41 | 48.5 | 70 | 94 | 118 | 142 | 176 | |
| 设备重量(Kg) | 2700 | 3700 | 4700 | 5700 | 7300 | 9300 | 10800 | 11300 | 13300 | |





